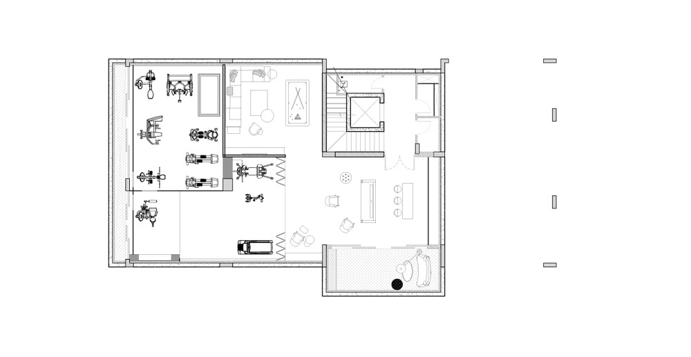
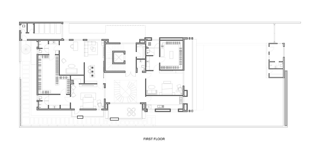
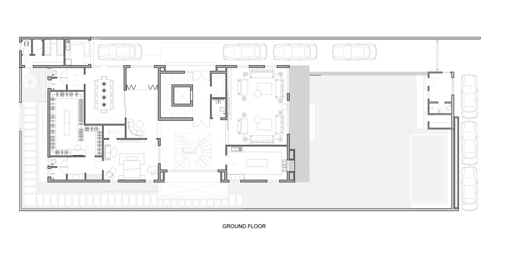
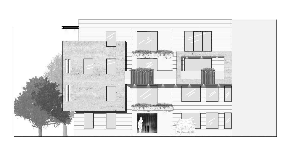
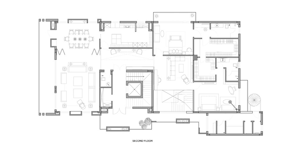
Designed for a family valuing both togetherness and individuality, this multi-level Delhi home balances grand design with the warmth of daily life.
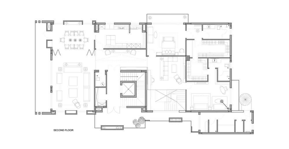
From the moment you step inside, the spaces unfold seamlessly into one another between the kitchen, dining, and living areas, all anchored by a sculptural floating staircase that winds upward like a piece of art.
Storage is built into the architecture, with walls that double as display features, ensuring organization never comes at the cost of character. Statement lighting punctuates the neutral palette without overpowering it.
The home offers multiple ways to gather: a formal dining room, complete with crystal chandelier and rich wood tones, sets the stage for special occasions, while casual seating areas invite relaxed family time. The master suite and other private spaces extend the idea of luxury as comfort, creating a true private retreat within the home.






































