[mainmenu_with_submenusddd]

Cottage in Woods

Foot Hills of Himalayas, India

Nestled in the Himalayan foothills, this intimate cottage embraces vernacular architectural traditions while creating contemporary comfort through thoughtful spatial organization. The design responds with sensitivity to its mountainous context, employing a compact footprint that minimizes site disruption while maximizing its engagement with the surrounding landscape.

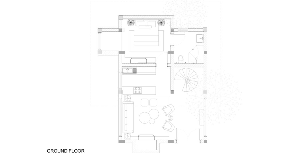
The cottage’s defining feature is its steeply pitched gabled roof, a response to heavy snowfall that becomes an expressive formal gesture. Clad in horizontal timber slats in earthy tones, the exterior references regional building methods while the roof’s geometry creates soaring interior volumes. Stone masonry supports the composition, grounding the structure to its site and providing thermal mass for climate moderation. The ground floor establishes an arrangement where kitchen, dining and lounge areas flow into one another, culminating in expansive glazing that dissolves boundaries between interior and exterior.

Location:
Foot Hills of Himalayas, India
Client:
--
Scope:
Architecture, Interior Design & PMC
Area:
Plot Area: 1 acres
 Built up Area: 1500 Sqft
Completion:
August 2024

Cottage in Woods

Client Name: AGARWAL
Completion: 2025-02-26
Location: Foot Hills of Himalayas, India

Nestled in the Himalayan foothills, this intimate cottage embraces vernacular architectural traditions while creating contemporary comfort through thoughtful spatial organization.

A cantilevered deck extends the living space outward, offering protected outdoor rooms with panoramic vistas. Integrated firewood storage beneath the entrance overhang adds a layer of functionality. Upper-level sleeping areas benefit from the ceiling's verticality, with a private balcony accessing treetop views. Material restraint, efficient planning and environmental sensitivity, together, create an architectural language that honours its context.