[mainmenu_with_submenusddd]

Country Home

Dehradun, India

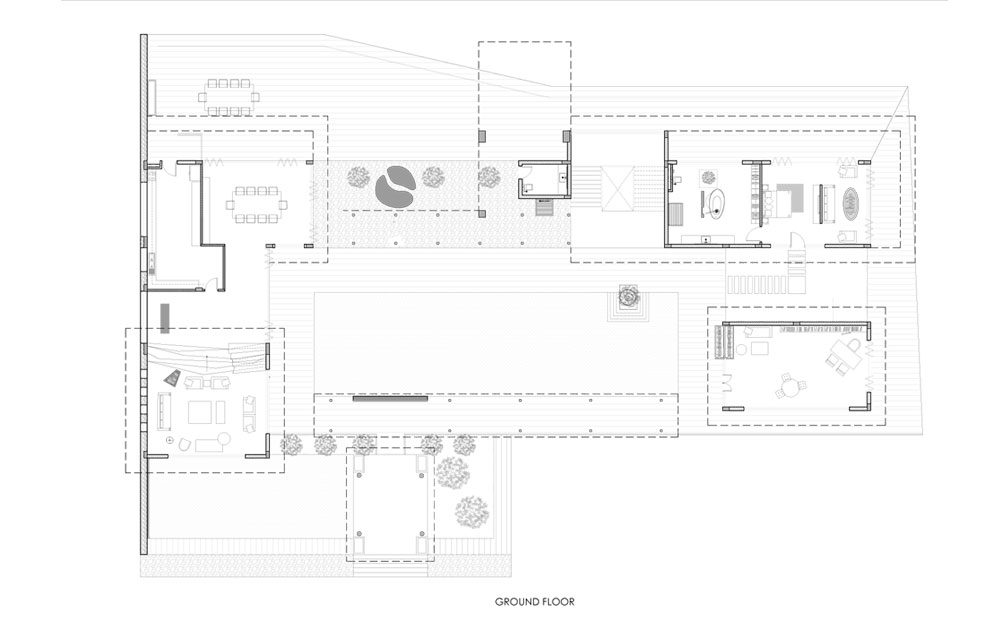
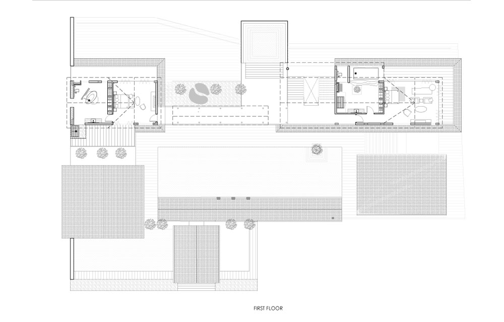
This expansive mountain residence in Dehradun creates a dialogue between vernacular building traditions and modern spatial luxury. Sited along a dramatic ridgeline with captivating mountain views around, the design embraces horizontality to anchor itself within the landscape while celebrating the panoramic context. The architectural composition unfolds as a series of interconnected pavilions unified by sweeping gabled rooflines clad in terracotta tiles, nodding to the regional heritage. Exposed timber trusses articulate structural honesty while warm rust-coloured cladding and locally sourced stone establish a sense of material authenticity.

Generous wrap-around terraces with horizontal timber screening extend living spaces outwards, mediating between interior comfort and mountain exposure while providing climate-responsive shading. Programmatically, the residence accommodates expansive entertaining and private family zones through strategic zoning. Public spaces flow with ease across the open-plan. A central courtyard introduces an outdoor space within the built form, while peripheral pavilions house private quarters.

Location:
Dehradun, India
Client:
--
Scope:
Architecture, Interior Design
Area:
Plot Area: 2000 Sq yds
 Built up Area: 10,000 Sqft
Completion:
Concept

Country Home

Client Name: AGARWAL
Completion: 2025-02-26
Location: Dehradun, India

This expansive mountain residence in Dehradun creates a dialogue between vernacular building traditions and modern spatial luxury. Sited along a

The lower level leverages the sloping topography, incorporating transparent bases that lighten the structure's visual mass while framing hillside views. Material restraint, climatically responsive design strategies and refined detailing create architecture that feels simultaneously rooted in context and expressing contemporary appeal.