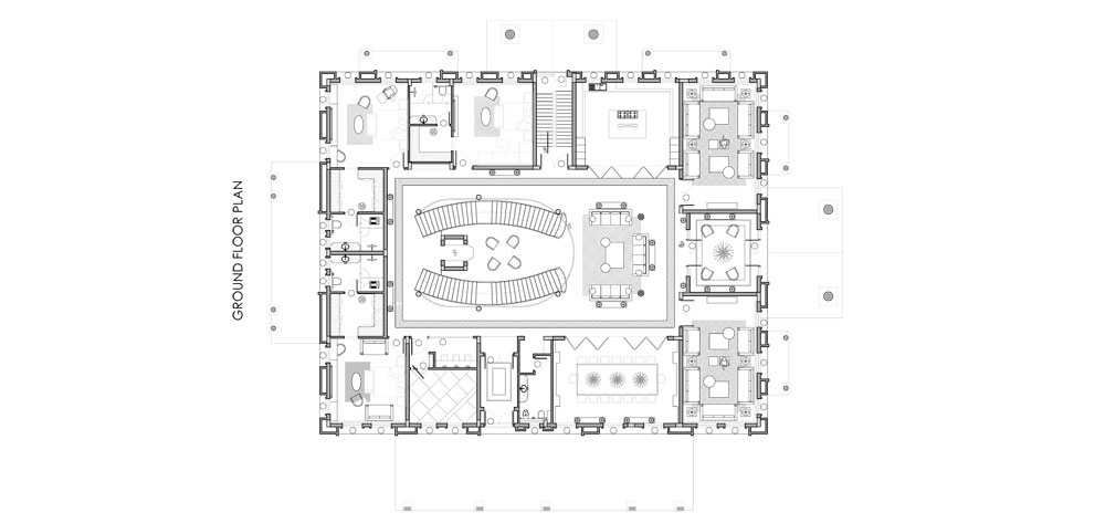
At Mumtaz Villa, royalty becomes a part of everyday living. Designed as a private residence, the home channels the grandeur of European palaces while fulfilling the client’s desire for luxury and comfort.
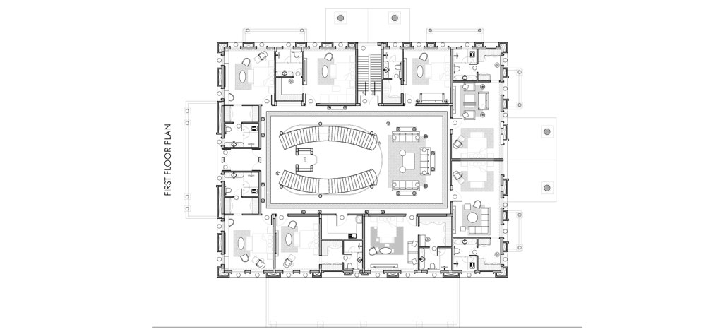
Its commanding three-story presence and palatial facade set a regaltone even before entry. Crossing the threshold, the entrance greets one with a resplendent double-height foyer, crowned with a striking ceiling and framed by twin curved marble staircases.
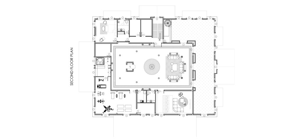
Marble flooring flows seamlessly through the interiors, uplifting the opulence of the house. The living areas balance an impressive scale with functionality and warmth. Bedrooms are adorned with ornate ceilings, dramatic paneled walls, and sparkling crystal chandeliers, creating havens of private luxury. The bathrooms echo the ambiance of a spa, with golden fixtures and geometric surfaces that merge indulgence with serenity. Formal entertainment rooms heighten the sense of occasion, with rich wall fabrics and statement lighting. Every element speaks of refinement; warm-toned woodwork, custom finishes, and consciously placed lighting come together in harmony.















