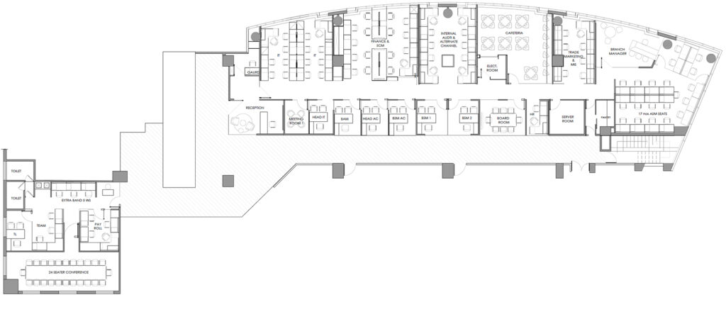
The design of this office for confectionery company Perfetti Van Melle occupies an irregular floorplate that has been efficiently maximized, creating a comprehensive workplace that balances various departmental needs with collaborative amenities. The reception area establishes immediate brand presence through bold signage mounted on a crisp white desk, set against a backdrop of pale wood panels and charcoal accent walls. The material vocabulary throughout centers on warm blonde wood laminate colour blocked atop with deep charcoal gray surfaces and frosted glass partitions, creating visual clarity while maintaining spatial openness.
Circulation corridors employ an innovative ceiling treatment with a white and black checkerboard pattern that allows wayfinding through visual interest while concealing mechanical systems. Full-height glass partitions with stainless steel hardware maintain transparency between the workstations and private offices, reinforcing organizational accessibility. The conference room achieves functional simplicity through a substantial wood table with black leather seating, complemented by natural light and integrated AV technology.











