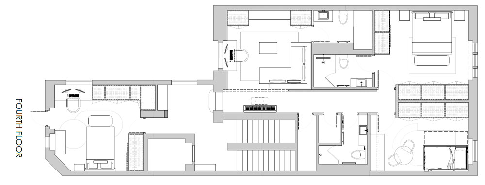
This four-bedroom penthouse is a calm take on chaotic city living. Natural light, warm materials, and carefully detailed spaces create an atmosphere that feels both elegant and inviting. Unfolding as interconnected volumes, the interiors establish a homey atmosphere through wood, stone and soft upholstery. Natural light flushes in through skylights and floor-to-ceiling glass, moving across surfaces throughout the day.
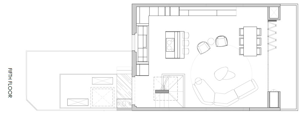
The main living area opens generously, anchored by a sweeping sepia-toned statement mural. Curved seating floats atop circular rugs defining zones without walls, while sculptural chandeliers trace lines of glow overhead. The kitchen integrates bronzed cabinetry and marble surfaces reading as part of the design.



















