Four stories of stone and stucco rise with quiet assurance knowing what they want to be – a house embracing personality and grounded ambition.
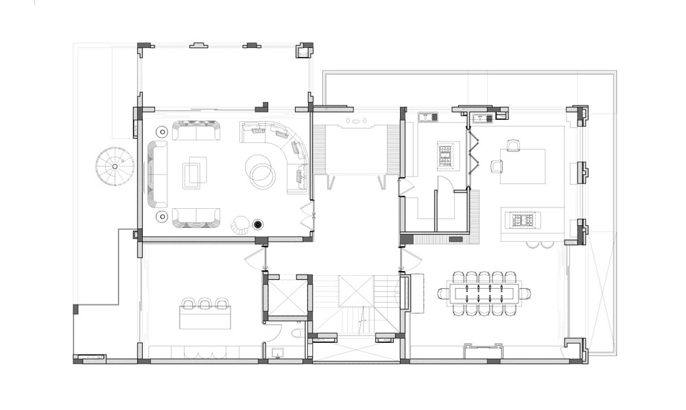
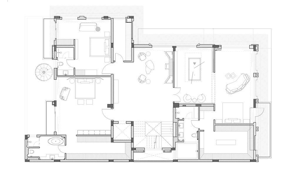
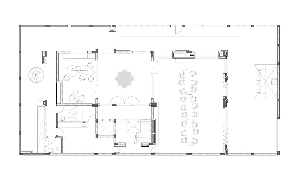
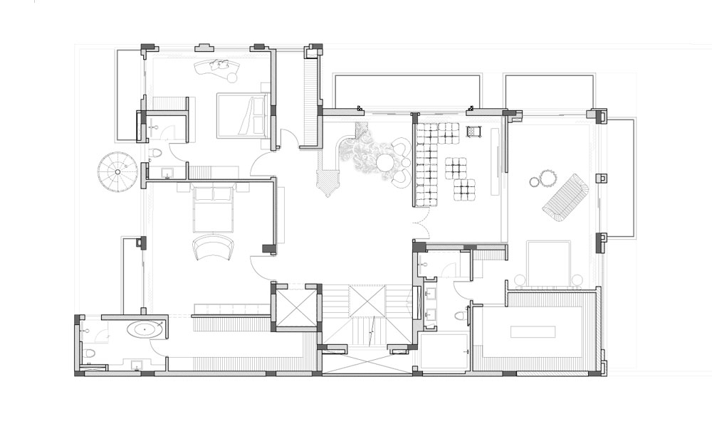
Step through the double-height entrance and you’re standing on a chessboard of marble, patterns radiating outward toward a central fountain and a brass-clad stair beyond. Rooms unfold gradually: walls of gridded glass frame shifting views, while hand-painted grisaille murals evoke European estates, their monochrome restraint keeping them atmospheric rather than ornamental. Descend into the sunken lounge and the mood changes. Water surrounds the seating on three sides, bamboo climbs toward an open sky and the architecture dissolves into something between spa and secret garden. The primary bedroom wraps itself in layered paneling with a marble inset. One floor below, the kitchen surprises with powder-blue cabinetry traced with rococo flourishes, a choice that feels inevitable here.




























