Designed for barefoot luxury and easy living, these tropical villas make relaxation feel natural through design.
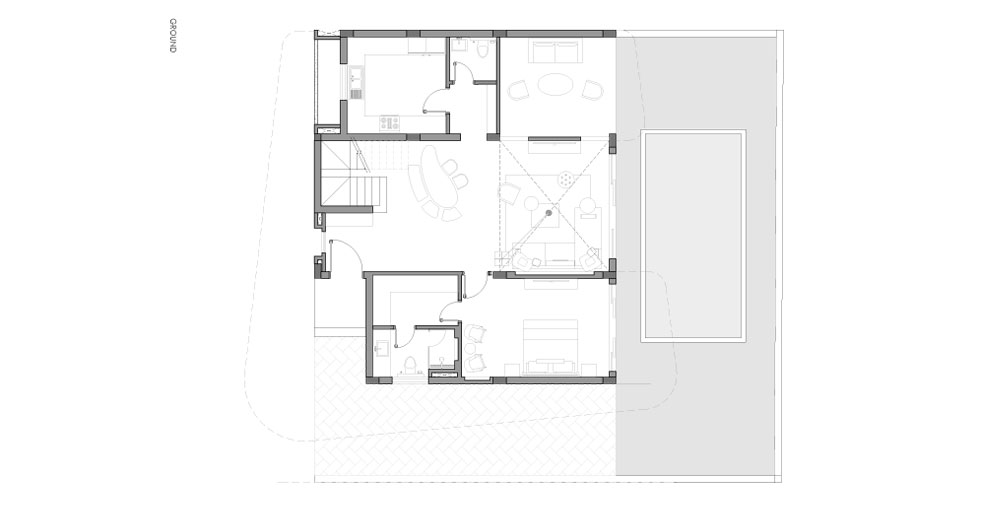
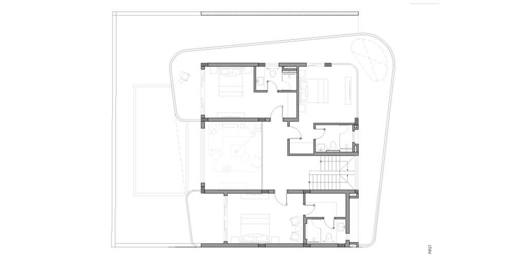
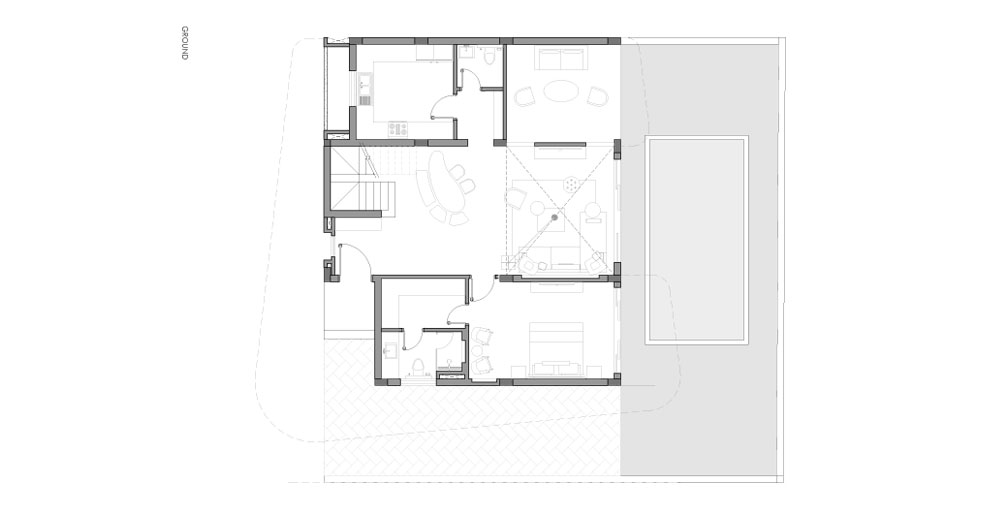
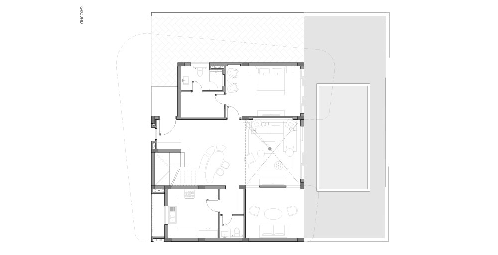
White walls and exposed wood beams maintain a clean aesthetic while stone feature walls bring in raw textures. Double-height living spaces allow air to circulate naturally even during the hottest days. Woven pendant lights and cane furniture reinforce a tropical atmosphere. The pool sits right against the main living areas, separated only by glass doors that disappear when opened. Curved walls create private outdoor spaces while organic paving patterns add visual interest underfoot. Palm trees frame views without blocking light. Inside, the open plan connects living, dining and kitchen areas while the mezzanine level adds sleeping space without walls that would interrupt the flow.










